
Это пространство создано для жизни в гармонии и вдохновения. Утренний кофе в лучах солнца, семейные ужины при мягком свете и уютная атмосфера делают кухню центром дома. Здесь легко воплощать любые кулинарные фантазии.

Пространство объединяет гостиную и столовую, сохраняя при этом удобное разделение зон при помощи камина. Такой подход создаёт единый светлый интерьер, где легко собираться всей семьёй или принимать гостей. Гостиная остаётся местом для отдыха и общения, а столовая — центром семейных ужинов и праздничных встреч. Гармония в объединении зон делает дом ещё более уютным и функциональным.

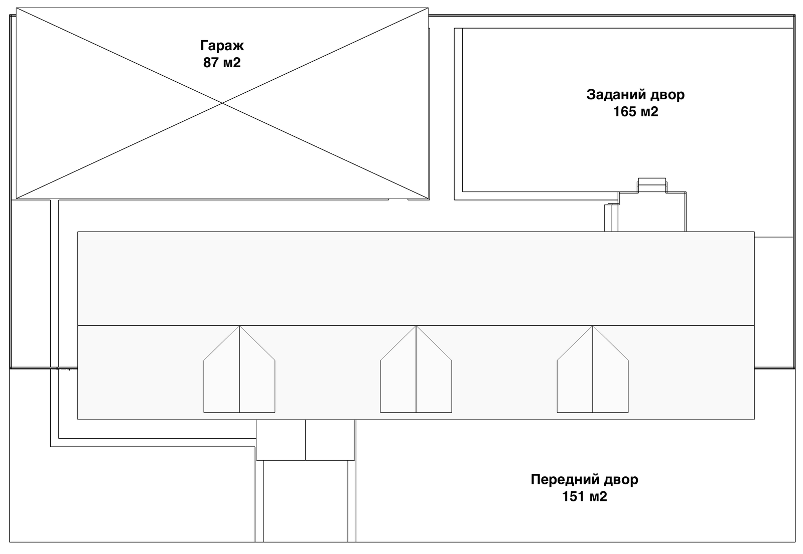
Просторный гараж рассчитан на три автомобиля и обеспечивает удобство для всей семьи. Здесь легко разместить личный транспорт, а также оставить место для хранения инвентаря и оборудования. Гараж сочетает практичность, комфорт и безопасность, делая дом ещё более функциональным.

Задний двор спроектирован как приватная зона отдыха для всей семьи. Здесь можно проводить вечера на патио, наслаждаться барбекю, отдыхать у бассейна или просто гулять по зелёному газону. Атмосфера уюта и тишины делает задний двор продолжением дома, где каждый найдёт своё место для отдыха и вдохновения.

Дом выполнен в сдержанном и элегантном английском стиле. Классические линии фасада, гармоничные пропорции и продуманные детали создают атмосферу солидности и уюта. Такой дизайн сочетает традиции и современный комфорт, подчёркивая статус владельцев и придавая дому особый характер.

Дома возводятся по современным каркасным технологиям, которые сочетают энергоэффективность, надёжность и скорость строительства. Каркас обеспечивает прочность и долговечность здания, а утеплённые стены сохраняют тепло зимой и прохладу летом. Такое решение делает дома экологичными, экономичными в эксплуатации и комфортными для круглогодичного проживания.

Для отделки фасадов используется клинкерный сайдинг — прочный, долговечный и эстетичный материал. Он надёжно защищает дом от влаги, мороза и перепадов температур, при этом сохраняя привлекательный внешний вид на долгие годы. Богатая фактура и естественные оттенки делают фасад стильным и солидным, подчёркивая статус дома.

Территория каждого дома продумана до мелочей: выполнен ландшафтный дизайн передних и задних дворов. Зелёные насаждения, аккуратные дорожки и декоративные элементы создают гармоничное и ухоженное пространство. Передний двор подчёркивает статус и эстетику дома, а задний — превращается в приватную зону отдыха для всей семьи.



